上海世貿商城常用信息
- 展館城市:上海
- 展館網址:www.shanghaimart.com
- 展館位置:上海市延安西路2299號
- 展館規模:
- 標攤數量:0
- 室內面積:20800 m2
- 室外面積:1000 m2
上海世貿商城展館簡介
上海世貿商城展館簡介
上海世貿商城西臨古北路、虹橋路,南迎延安路,北靠虹橋領館區,坐落于上海新興的“大虹橋開發區”,地理位置得天獨厚。毗鄰內環線和高架路出口處,開車十分鐘即達“大虹橋交通樞紐”,擁有城際高鐵、磁懸浮、地鐵、機場、公交等幾十條線路的立體化交通網。
上海世貿商城由國際常年展貿中心、上海世貿展館、上海世貿大廈三大主體建筑構成,是一個集展示、交易、辦公、資訊于一體的超級交易市場,為國內外商家及專業買主提供一流的、國際級的設施與服務。
國際常年展貿中心——中國第一家、亞洲規模最大的國際級專業展貿市場。200,000平方米的展示空間,設2200個常年展示間,是企業進行商品展示、交易的理想場所。目前,中心匯集了服裝、面輔料、家紡、禮品飾品等產業的近千家優秀供應商。
上海世貿展館——上海市五大展覽館之一,37,000多平方米的展覽場地與多功能會議中心,每年舉辦上百場展覽會和大型會議,與常年展貿中心形成互動,彼此促進,共同發展。
上海世貿大廈——5A甲級智能化辦公大樓,42,000平方米的建筑面積,高30層,為跨國采購機構及專業買家提供高品質、現代化辦公場所。目前,全球著名企業英特爾、史丹利、帝凡黎、愛世克私、三菱重工、歐洲服裝連鎖集團C&A等已入駐上海世貿大廈。
上海世貿商城展覽館總面積約2萬平方米,并擁有2,000平方米的多功能廳和各種規格的會議室,可滿足各類展覽會和商務活動的需求。
世貿展覽中心位于虹橋涉外貿易中心的核心區域,可便捷通達 “虹橋綜合交通樞紐”,地鐵10號線伊犁路站僅在咫尺(步行五分鐘),世貿正門前有10余條公交線路設立世貿商城站點。且兩公里范圍內有5家五星級酒店,10余家三星和四星級酒店.
1號館為5200 平方米的大型展廳,為大型展覽會和活動提供良好的硬件設施和現場服務。
2號館、3號館分別為3800平方米和1600 平方米的展廳,適合舉辦中小型專業展覽會、商品訂貨會、品牌酬賓會、人才交流會、小型研討會等中小型展覽會和商業活動。
4號館為8200 平方米的大型展廳,是大型展覽的理想場地,適合大規模的獨立展會或與一樓、三樓展廳進行聯動。
世貿多功能廳為2000平方米的無柱結構場地,頂穹挑空高度最高處達16米,典雅大氣的場地條件和良好的配套服務為各類國內外高端會議、公司年會慶典,時尚秀演、品牌訂貨會、新聞發布會提供了一個理想場所。
上海世貿商城會議室情況
世貿會議中心擁有9間50-220平方米面積不等的會議室,可用于舉辦新聞發布會,專題講座、研討會、專業培訓、公司內部會議等各種會議,也可配合七樓多功能廳作為大型國際會議的專題分會場,更是配合世貿展覽館各類展覽會同期舉辦專業技術交流會的首選。1號會議室93.47平米;2號會議室173.88平米(A為94.51平米,B為79.37平米);3號會議室52.03平米;4A會議室90.50平米;4B會議室92.46平米;4C會議室92.88平米;5A會議室93.24平米;5B會議室99.61平米;貴賓室55.08平米
上海世貿商城技術參數
上海世貿商城西臨古北路、虹橋路,南迎延安路,北靠虹橋領館區,坐落于上海新興的“大虹橋開發區”,地理位置得天獨厚。毗鄰內環線和高架路出口處,開車十分鐘即達“大虹橋交通樞紐”,擁有城際高鐵、磁懸浮、地鐵、機場、公交等幾十條線路的立體化交通網。
上海世貿商城由國際常年展貿中心、上海世貿展館、上海世貿大廈三大主體建筑構成,是一個集展示、交易、辦公、資訊于一體的超級交易市場,為國內外商家及專業買主提供一流的、國際級的設施與服務。
國際常年展貿中心——中國第一家、亞洲規模最大的國際級專業展貿市場。200,000平方米的展示空間,設2200個常年展示間,是企業進行商品展示、交易的理想場所。目前,中心匯集了服裝、面輔料、家紡、禮品飾品等產業的近千家優秀供應商。
上海世貿展館——上海市五大展覽館之一,37,000多平方米的展覽場地與多功能會議中心,每年舉辦上百場展覽會和大型會議,與常年展貿中心形成互動,彼此促進,共同發展。
上海世貿大廈——5A甲級智能化辦公大樓,42,000平方米的建筑面積,高30層,為跨國采購機構及專業買家提供高品質、現代化辦公場所。目前,全球著名企業英特爾、史丹利、帝凡黎、愛世克私、三菱重工、歐洲服裝連鎖集團C&A等已入駐上海世貿大廈。
上海世貿商城展覽館總面積約2萬平方米,并擁有2,000平方米的多功能廳和各種規格的會議室,可滿足各類展覽會和商務活動的需求。
世貿展覽中心位于虹橋涉外貿易中心的核心區域,可便捷通達 “虹橋綜合交通樞紐”,地鐵10號線伊犁路站僅在咫尺(步行五分鐘),世貿正門前有10余條公交線路設立世貿商城站點。且兩公里范圍內有5家五星級酒店,10余家三星和四星級酒店.
1號館為5200 平方米的大型展廳,為大型展覽會和活動提供良好的硬件設施和現場服務。
2號館、3號館分別為3800平方米和1600 平方米的展廳,適合舉辦中小型專業展覽會、商品訂貨會、品牌酬賓會、人才交流會、小型研討會等中小型展覽會和商業活動。
4號館為8200 平方米的大型展廳,是大型展覽的理想場地,適合大規模的獨立展會或與一樓、三樓展廳進行聯動。
世貿多功能廳為2000平方米的無柱結構場地,頂穹挑空高度最高處達16米,典雅大氣的場地條件和良好的配套服務為各類國內外高端會議、公司年會慶典,時尚秀演、品牌訂貨會、新聞發布會提供了一個理想場所。
上海世貿商城會議室情況
世貿會議中心擁有9間50-220平方米面積不等的會議室,可用于舉辦新聞發布會,專題講座、研討會、專業培訓、公司內部會議等各種會議,也可配合七樓多功能廳作為大型國際會議的專題分會場,更是配合世貿展覽館各類展覽會同期舉辦專業技術交流會的首選。1號會議室93.47平米;2號會議室173.88平米(A為94.51平米,B為79.37平米);3號會議室52.03平米;4A會議室90.50平米;4B會議室92.46平米;4C會議室92.88平米;5A會議室93.24平米;5B會議室99.61平米;貴賓室55.08平米
上海世貿商城技術參數
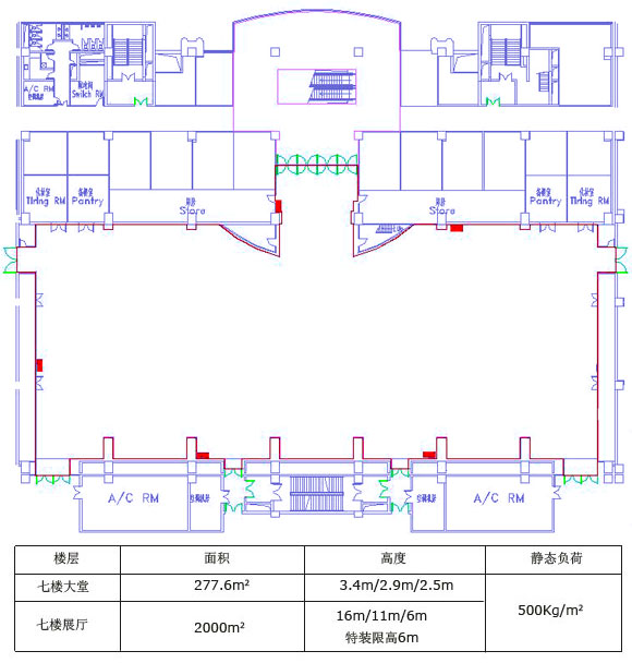
承重:1層展廳1500kg/㎡;3層和7層展廳500kg/m2 4層展廳1000kg/m2
層高:1層8m;3層3.8米;4層6米;7層16米
限高:1層6.5m,特裝限高7m,局部6.5m;3層3m,特裝限高3.5m,局部3m;4層4.5m,特裝限高6m,局部5.5m;7層6m,特裝限高6m
通訊系統:
ISDN、ADSL、無線寬帶
上海世貿商城乘車路線
1.從虹橋火車站如何走
公交地鐵:步行至 虹橋火車站 乘坐 地鐵2號線, 在 威寧路站 下車
步行至 天山路水城路站 乘坐 158路, 在 古北路興義路站 下車
步行至 上海世貿商城有限公司
2.從上海火車站如何走
公交地鐵:乘坐 地鐵3號線(或 地鐵4號線), 在 延安西路站 下車
步行至 凱旋路延安西路站 乘坐 709路, 在 延安西路婁山關路站 下車
步行至 上海世貿商城
3.從浦東機場如何走
公交地鐵:步行至 浦東國際機場站 乘坐 地鐵2號線, 在 靜安寺站 下車
步行至 靜安寺站 乘坐 57路, 在 延安西路婁山關路站 下車
步行至 上海世貿商城
4.從上海南站如何走
公交地鐵:乘坐 地鐵3號線, 在 延安西路站 下車
步行至 凱旋路延安西路站 乘坐 709路, 在 延安西路婁山關路站 下車
步行至 上海世貿商城
5.從虹橋機場如何走
公交地鐵:乘坐 925路, 在 延安西路虹橋開發區站 下車
步行至 上海世貿商城有限公司
公交地鐵:步行至 虹橋火車站 乘坐 地鐵2號線, 在 威寧路站 下車
步行至 天山路水城路站 乘坐 158路, 在 古北路興義路站 下車
步行至 上海世貿商城有限公司
2.從上海火車站如何走
公交地鐵:乘坐 地鐵3號線(或 地鐵4號線), 在 延安西路站 下車
步行至 凱旋路延安西路站 乘坐 709路, 在 延安西路婁山關路站 下車
步行至 上海世貿商城
3.從浦東機場如何走
公交地鐵:步行至 浦東國際機場站 乘坐 地鐵2號線, 在 靜安寺站 下車
步行至 靜安寺站 乘坐 57路, 在 延安西路婁山關路站 下車
步行至 上海世貿商城
4.從上海南站如何走
公交地鐵:乘坐 地鐵3號線, 在 延安西路站 下車
步行至 凱旋路延安西路站 乘坐 709路, 在 延安西路婁山關路站 下車
步行至 上海世貿商城
5.從虹橋機場如何走
公交地鐵:乘坐 925路, 在 延安西路虹橋開發區站 下車
步行至 上海世貿商城有限公司
上海世貿商城聯系信息
聯系電話:021-2325 5434/021-2325 5435
傳真:021-2325 5116
Email:vivi.min@shanghaimart.com.cn /jean.fang@shanghaimart.com.cn
傳真:021-2325 5116
Email:vivi.min@shanghaimart.com.cn /jean.fang@shanghaimart.com.cn
展館外觀圖
更多>>展館場館圖
更多>>周邊酒店住宿服務
更多>>- 很近上海愛家招待所
- 很近上海福泰國際商務酒店
- 很近上海漢庭快捷酒店(世貿商城店)
- 很近上海虹橋全季酒店
- 適中上海虹橋賓館
- 適中上海揚子江萬麗大酒店
- 適中上海紅典花園會館
- 適中上海領尚國際酒店




