更多>>展館圖片展示

當前展會信息
高端訪談匯總
更多>>周邊賓館酒店
- 很近濟南佰富晟旅館
- 很近濟南石島山莊
- 適中濟南欣悅旅館
- 適中濟南華通賓館(原省交通廳招待所)
- 適中辰蕊旅館
- 適中山東國際商務會館(濟南)
- 適中濟南舜耕山莊
- 較遠濟南舜元大酒店
濟南舜耕國際會展中心介紹
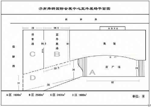
濟南國際會展中心坐落在歷史文化名城濟南市東部——國家級濟南高新技術產業開發區中心,南臨市區主干道經十路和工業南路,東連繞城高速公路與濟青、京福高速公路相通,西距市中心15公里。地理位置優越,交通便捷通暢。 濟南國際會展中心建筑面積15萬平方米,展覽會議面積7萬平方米,建筑雄偉、設施先進、配套齊全,其規模化、現代化和專業化在國內會展場館中位居前列。展館分為A、B、C、D、E五個區, 展廳有12個,有26個不同類型和規模的國際報告廳、多功能廳、會議室、貴賓廳和電子商務間。A區為商務酒店、購物區,有233間客房、8個不同規模的…
場館地址:山東省濟南市市中區舜耕路28號華聯門口 [查看地圖]
場館地址:山東省濟南市市中區舜耕路28號華聯門口 [查看地圖]
2025年濟南舜耕國際會展中心展會排期表
| 序號 | 展會名稱 | 展會時間 | 展會專題 |
| 2025年7月展會信息 July | |||
|---|---|---|---|
| 1 | 2025第12屆山東安全應急與消防設備博覽會 | 2025/7/10 | 更多安防防護 |
| 2025年8月展會信息 August | |||
| 2 | 2025第49屆濟南國際美業博覽會 | 2025/8/5 | 美發 |
| 3 | 2025山東濟南國際秋季茶產業博覽會 | 2025/8/29 | 茶業 |
| 2025年9月展會信息 September | |||
| 4 | CSFE 2025中國(山東)食品博覽會暨濟南(中秋)糖酒商品交易會 | 2025/9/5 | 食品產業 |
| 2025年11月展會信息 November | |||
| 5 | 2025科技賦能“好房子”產業鏈博覽會 | 2025/11/26 | 貿易投資 |
| 2026年1月展會信息 January | |||
| 6 | 2026濟南世紀家博會 | 2026/1/1 | 建筑裝飾 |
| 2026年6月展會信息 June | |||
| 7 | 2026中國(山東)溫室大棚技術與設備博覽會 | 2026/6/16 | 農產品 |




頂:1人
踩:0人
